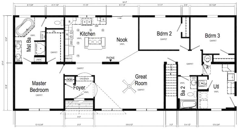
Description
- Inset Front Porch
- Formal Foyer w/Credenza
- Great Room
- Kitchen Island w/Snack Bar
- Black Appliance Package
- Kitchen Pantry Cabinet
- Master Walk-In Closet
- Master Bath Linen Closet
- Master Bath Soaker Tub
- Utility Room Sink

The formal foyer opens up into a great room.
| Home Type | Modular |
|---|---|
| Style | Ranch |
| Size | 27' 4" x 64' |
| Square Footage | 1,725 |
| Beds | 3 |
| Baths | 2 |
| Status | Order Only |
All descriptive representations of this home are believed to be correct at the time of publication. However, due to continued product improvement and changes in suppliers, design, and production, complete accuracy cannot be guaranteed. Therefore, equipment, colors, material specifications, options, prices, and model availability are subject to change without notice.