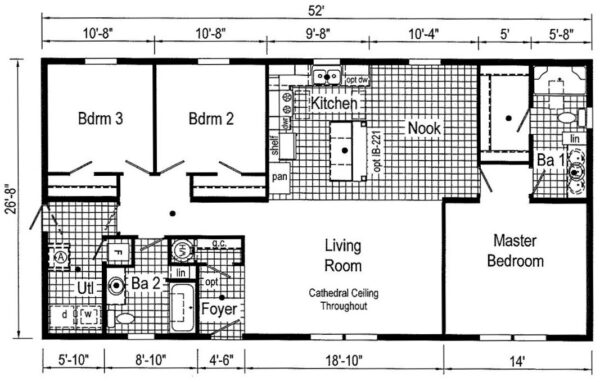
Description
- Gas Package
- 200 Amp Electrical Service
- 6’ Dormer w/Decorative Columns
- 4-Lite Fiberglass Front Door
- 6-Panel Fiberglass Rear Door
- Vinyl Low-E Windows
- White 6-Panel Interior Doors
- LED Can Lights
- French Country Oak Flat Panel Cabinets
- Soft Close Drawer Guides
- Kitchen Island w/Snack Bar
- Stainless Steel Double Bowl Kitchen Sink
- Stainless Steel Appliance Package
- Nook Shiplap Accent Wall
- Master Walk-In Closet
- Porcelain Vanity Sinks
- Master Bath 36x60 Fiberglass Shower
- Master Bath Linen Cabinet
- Hall Bath 60" Fiberglass Tub
- Utility Room Sink



